HOME

Welkom op de site van CAD-TEK plattegronden !!!
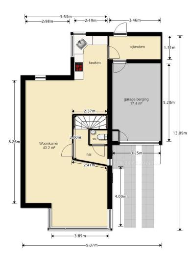
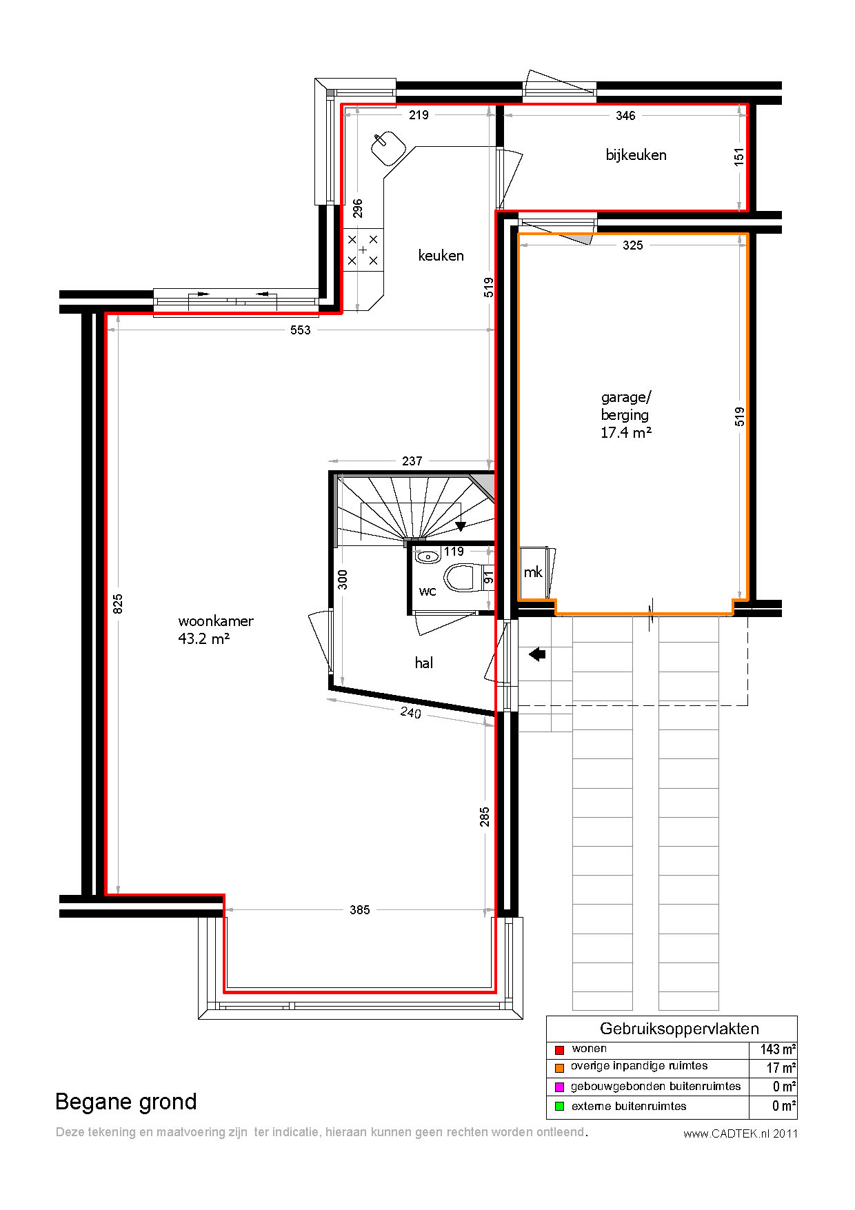
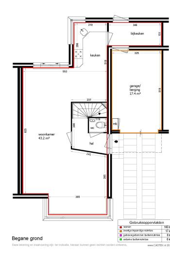
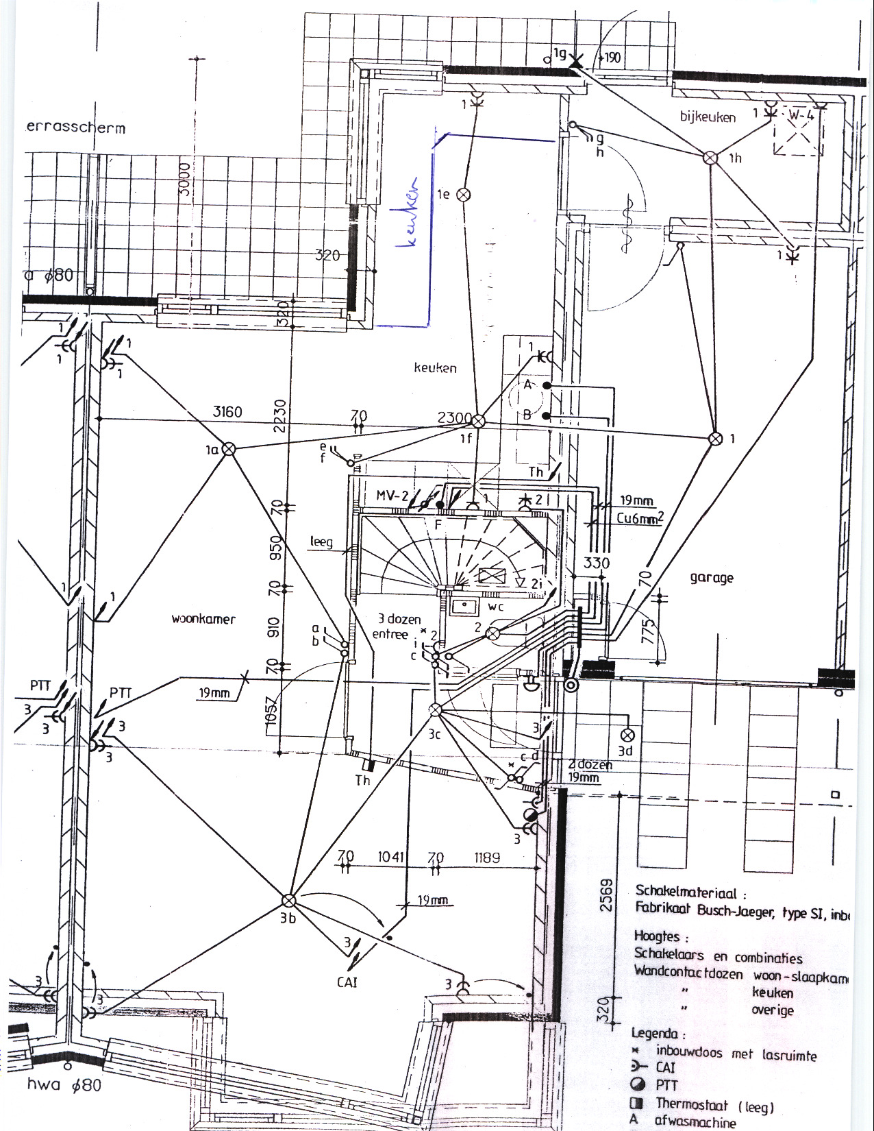
Representatieve duidelijke digitale en interactieve plattegronden met veel mogelijkheden.
Binnen 3 werkdagen zijn de tekeningen in Uw bezit !

email: cadtek@ziggo.nl adres:Hoogstraat 167 5258 BC Berlicum Tel:0735942208 kvk:17223625