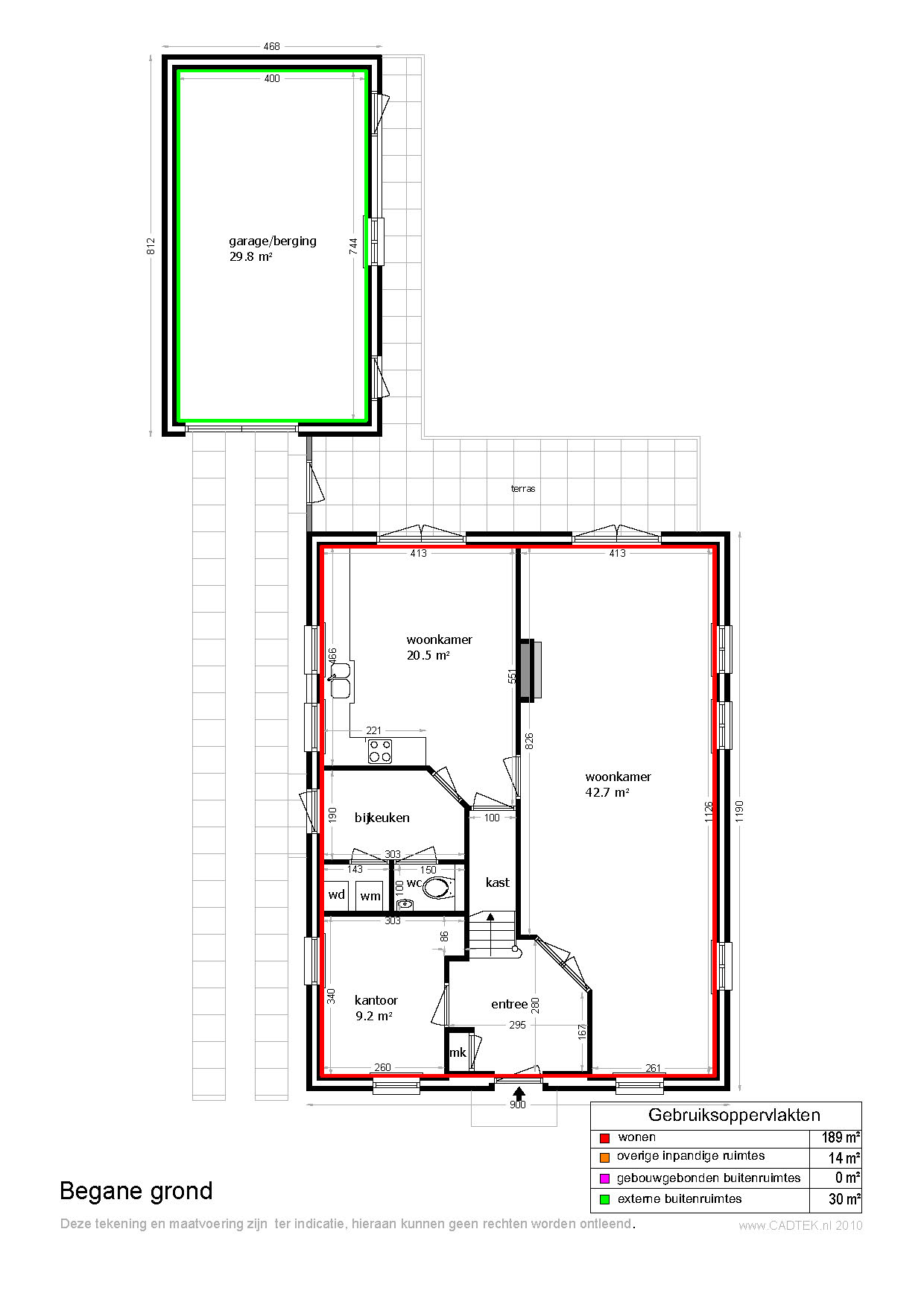
PLATTEGRONDEN

VAN SCHETS OF OUDE TEKENING EEN DUIDELIJKE PLATTEGROND
MET GEBRUIKOPPERVLAKTEN, BEKIJK DE VOORBEELDEN IN DE
LINKERKOLOM.
Oppervlakte maten (gebruiksoppervlakten) volgens NEN 2580,
worden in een appart bestand aangeleverd.
Voorbeeld 4 is interactieve, 2 en 3 demensionaal voor;




email: cadtek@ziggo.nl adres:Hoogstraat 167 5258 BC Tel:0735942208 kvk:17223625